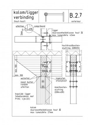
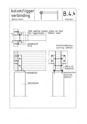
Houtconstructie details.
De Werkgroep Constructie Details heeft een map samengesteld van de meest voorkomende aansluitdetails in houtconstructies. Deze details moeten de ontwerpende architecten en ingenieursbureaus een handvat geven voor de detaillering. Er is een zo breed mogelijk scala van aansluitingen op diversen materialen belicht. Het werd een algemene handreiking hoe houtconstructies gedetailleerd kunnen worden zonder expliciet het statische systeem en het krachtenspel in de verbinding doorgerekend te hebben. Het gaat om een principe. De details zijn gebaseerd op de kennis en inzicht van ervaren constructeurs en fabrikanten.
Het uiteindelijke definitieve constructieve detail in afmeting met bevestigingsmiddelen dient door de gespecialiseerde houtconstructeur nader te worden uitgewerkt.
Er is in de detaillering aandacht besteed aan de algemene constructieve- en hout technische aspecten zoals randafstanden, keepwerking, sparingen, houtsoorten, vochtindringing en ventilatie.













